Luyện Thi Tokutei
Luyện Thi Tokutei Kaigo
Luyện Thi JLPT
Luyện Thi JFT
Tài liệu Tokutei
Bài giảng Tiếng Nhật
Bài giảng Tiếng Hàn
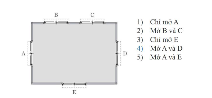
Sơ đồ dưới đây miêu tả vị trí cửa sổ của một phòng được đóng kín cửa. Mở cửa sổ như thế nào trong các phương án dưới đây để đạt hiệu quả thông khí? (Chú ý) Giả sử: Tất cả các cửa sổ có cùng kích cỡ.Chiều cao của trần nhà là như nhau.Không có bất cứvật dụng nào trong phòng. Xung quanh không có tòa nhà nào khác)
Bạn có chắc chắn muốn nộp bài không?